With so much to do in the new half of the house, and there’s a whole saga behind that phrase, there has been little time to do much on the boat. Reading other people’s restoration blogs or articles leaves me feeling inspired and depressed in pretty much equal measure. Two young guys restoring a ferro cement gaff cutter seem to get as much done in a day as I do in a week! What I have done is extended the budget planner spreadsheet I started when going through the heart-in-mouth purchase process. It’s a scary document. Obviously I went into this project with my eyes wide open, but ignorant eyes don’t see that much no matter how far apart you prise the eyelids. Who knew that paint for the hull would be the best part of £300. Or that a built in fridge would set you back 700 quid! Mattresses, made to measure £600! The saving grace is, there is no rush, the orchard is a free and convenient storage space, and I’m only 49 (sobs quietly into glass of Fursty Ferret) so plenty of time before she’s a hundred….
Hopefully more exciting content next blog. 😀
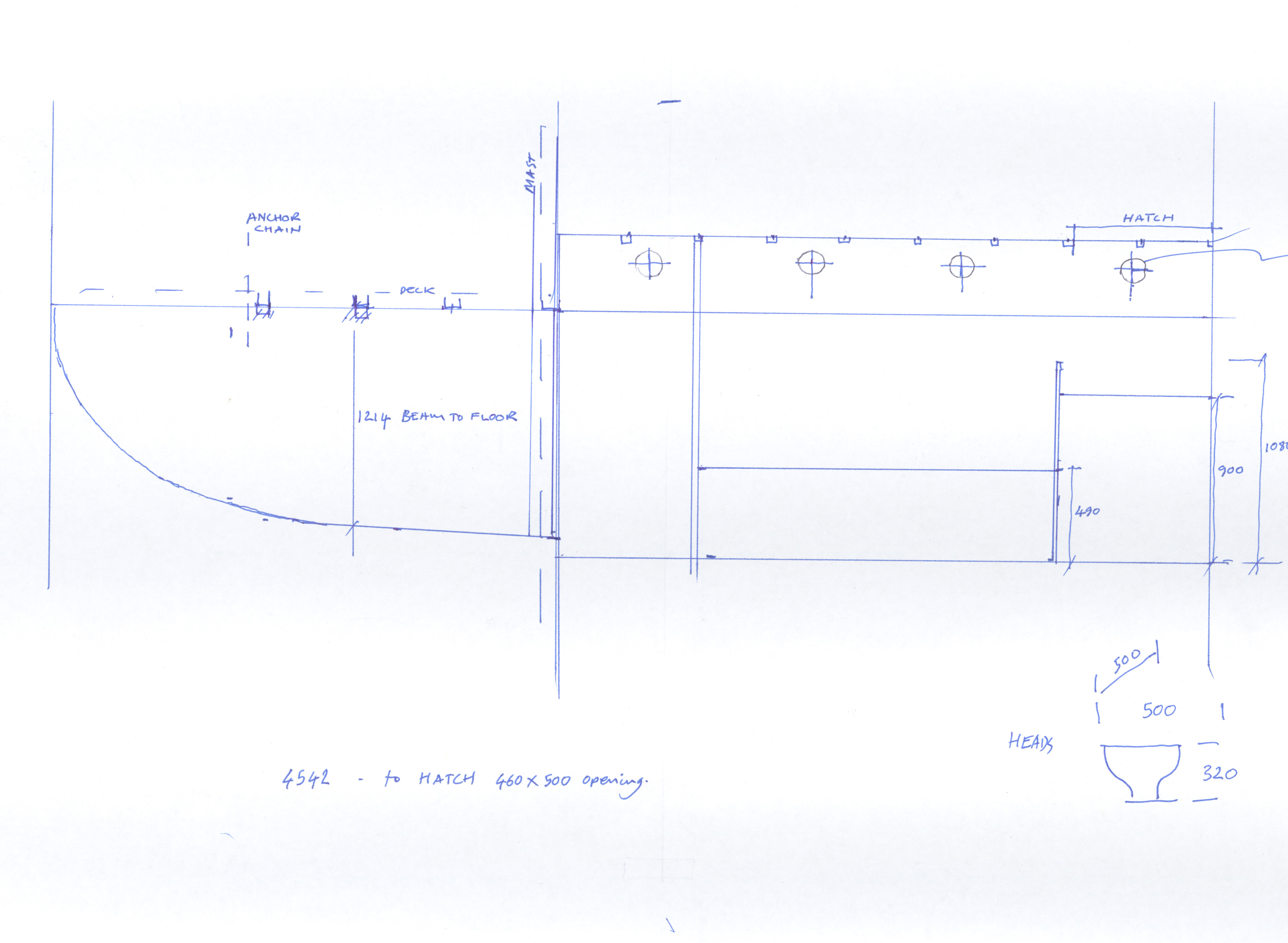
I’ve been cogitating on the layout inside and wondering how the forward bunks will work with a bloody great mast in the way. Lots of lunchtime doodles later and it was clear I needed a scale plan and elevation of the existing layout to work from. It was grey and miserable on Sunday so I was happy to be below decks, though I could have done with more light. Choosing the bulkhead between cabin and cockpit as my datum I sketched out the current layout.

So the question is; should the heads stay where it is, or move up to under the hatch? Then the forward bulkhead could be removed and the two forward bunks moved aft where there is more space. Or is it bad enough squatting in the existing angled cubby hole lurching up and down without restricting the headroom? There is good headroom where it is but the current bunks in the forward cabin are very cramped, in fact I struggle to see how you would access them at all once the mast is stepped. Then again…. crawling in to a bunk maybe inconvenient, but crawling into a toilet could have very messy consequences! I dont really fancy the ‘bog under the bed’ that lots of small boats have so I suppose really the question is, can I create a space big enough for the heads with a door to separate it from the cabin?
Time to redraw the sketch in AutoCAD and test the theories.
The restoration of a 1930's Gaff Cutter